г. Тюмень, ул.Константина Посьета, 16
квартира “под ключ”
Задача проекта
Дизайн-проект квартиры на ул.Минская
Классика и уют
Создать гармоничное и атмосферное пространство, в котором будет царить уют для жизни двух человек, а также осуществить мастерскую перепланировку, учитывающую все запросы и пожелания хозяев и, наконец, воплотить в жизнь все задуманные идеи, при этом сохранив полное внимание к деталям и без необходимости вмешательства заказчиков.
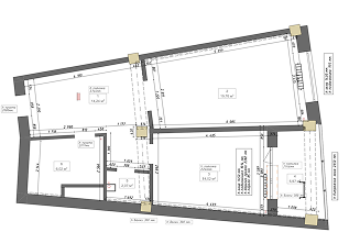
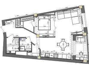
62 м.кв
Современного интерьера с изящным дизайном
Услуга

Создание 3D визуализаций
и авторский надзор ремонта
Помещения

Прихожая,
просторная кухня-гостиная,
спальня со своей гардеробной
и двумя санузлами
Кухня
Выполнена в натуральных светлых оттенках, с добавлением классических элементов и латуни, что делает её торжественной и уютной.
Здесь царят тихая элегантность и спокойствие: даже воздух кажется пропитанным гармонией между благородной сдержанностью и домашним теплом.
Спальня
Создана дополнительным пространством, в ней нет окна, комната черпает очарование в игре света и тени, рождённой прозрачными перегородками, которые заменили стены. Их матовые плоскости, подобно пергаменту, смягчают солнечные лучи, наполняя пространство теплым, рассеянным сиянием — не ярким, но достаточным, чтобы стереть грань между замкнутостью и простором.

Вентиляция, скрытая за лаконичными панелями, дышит едва слышным ритмом, сохраняя воздух свежим, словно после ночного дождя.
Здесь нет внешнего мира, зато есть интимность: приглушённые тона стен, текстуры натуральных материалов, глубина полупрозрачных ширм — всё работает на уют, не перегружая деталями.

Это кокон тишины, где даже отсутствие окон становится достоинством: ничто не нарушает медитативную атмосферу убежища, созданного не для взгляда вовне, а для погружения в себя.
Санузел
Гармонично вплетается в архитектурную гармонию квартиры, становясь её изысканным отражением. Благородная палитра натурального камня, смягчённая теплом сдержанных полутонов, перекликается с золотистыми бликами латуни, чьи изгибы напоминают о вечной гравитации изящества.

Многоуровневое освещение, словно кисть старинного мастера, лепит объёмы, насыщая пространство воздушной лёгкостью, а игра света и тени придаёт стенам почти скульптурную выразительность.
Здесь каждая деталь — не просто функциональный элемент, но молчаливый философ роскоши, говорящий намёками на языке вечности.
Гостинная
Обособленная в своём гармоничном уединении, ведёт тихий диалог с кухней через едва уловимую перекличку фактур и тонов. Свет, льющийся сквозь лёгкие ткани, растворяется в мягкой шероховатости натурального льна и мерцающих бликах на состаренной древесине, рождая игру полупрозрачных отсветов и теней.

Стены, отсылающие к благородной лаконичности мрамора, обрамляют пространство, где классические карнизы сплетаются с текучими силуэтами современной мебели.

Пастельные тона кремового и серебристо-серого, подобно акварельному мазку, смягчают геометрию, превращая торжественность интерьера в приглушённую мелодию.