г. Тюмень, ул.Константина Посьета, 16
квартира “под ключ”
Задача проекта
Дизайн-проект квартиры на ул.Тимофея Чаркова
Минималистичный
дизайн
Создать архитектурно-дизайнерскую концепцию премиального жилого пространства, воплощающую синтез инновационных технологий и эстетики современного урбанизма, где каждая деталь продумана для достижения эргономичного совершенства и визуальной гармонии.

Сформировать атмосферу элитарного уюта, трансформирующую жилище в оазис релаксации, где доминируют мягкие текстуры, приглушённая палитра и интеллектуальное освещение, нивелирующее следы стресса мегаполиса.
Реализовать философию «slow living» через дизайн, используя экологичные материалы, мебель-трансформеры минимализма и арт-объекты, генерирующие эмоциональный баланс между динамикой и созерцанием.

Спроектировать мультисенсорную среду с акцентами на акустический комфорт, ароматерапевтические ноты и тактильные поверхности, превращающие каждый квадратный метр в инструмент персональной ревитализации.

74 м.кв
Современного интерьера с изящным дизайном
Услуга

Создание 3D визуализаций и авторский надзор ремонта
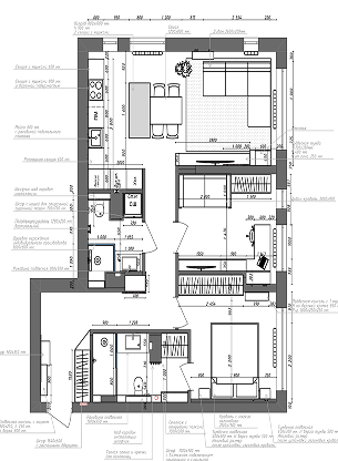
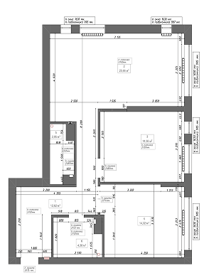
Помещения

Прихожая, кухня-гостиная,
две жилых комнаты и два санузла
Кухня
Кухня является логическим продолжением гостиной. Обеденная зона выражена в острове из натурального камня, эффектными барными стульями и стильными подвесными светильниками. Это эргономичное пространство, в котором каждая деталь подчинена эстетике и функционалу.
Детская
Дизайн детской объединяет модульную мебель, интеллектуальное хранение и эргономичные зоны, трансформирующиеся вместе с владельцем. Нейтральная база из экоматериалов служит холстом для самовыражения: сегодня — яркие постеры и игрушки, завтра — минимализм с арт-объектами.

Встроенные технологии (регулируемое освещение, скрытые стеллажи-трансформеры) и продуманное зонирование (рабочая зона, творческий уголок, зона отдыха) создают универсальную среду — от уроков начальной школы до бунтарского тинейджерства.
Санузел
Выполненный в едином стиле всего интерьера, подвесная мебель придаёт пространству лёгкость и элегантность. Многоуровневое освещение, организованное по различным сценариям, позволяет создать атмосферу, соответствующую любому настроению и назначению комнаты.
Спальня
Выполнена в утонченных природных оттенках, станет оазисом для отдыха и релаксации. Здесь царит гармония, а каждый элемент, выполненный из натуральных и экологичных материалов, способствует созданию атмосферы безмятежности и комфорта.
Гостинная
Гостиная изысканно воплощена в благородной палитре природных тонов, где каждый оттенок, словно приглушённый шепот осеннего леса или мягкое сияние закатного неба, создаёт ауру изысканного умиротворения.

Этот интерьер, сотканный из теплых земляных полутонов, благородных охристых акцентов и деликатных зелёных нюансов, словно приглашает погрузиться в объятия безмятежности, где границы между пространством и восприятием растворяются в медитативной гармонии.
Каждая деталь, от фактур натуральных материалов до игры естественного света, мастерски подчинена идее создания сакрального убежища — места, где время замедляет ход, а душа обретает диалог с первозданной красотой мироздания. Здесь царствует идеальная гармония эстетики и комфорта, превращающая обыденность в поэзию тишины.